Prahran
Square

Prahran
Square

“Prahran Square has been designed exclusively for positive and diverse human experiences. It creates an immersive multifaceted public space in the heart of this inner-city suburb that has been desperate for accessible urban space dedicated to the wellbeing and amenity of the local community.”

Adrian Stanic, Director of Lyons

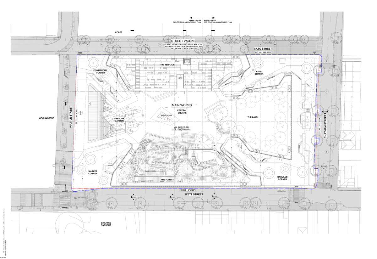
When it comes to public space, it is often true that people make places more than places make people. How then, as architects, do we design meaningful and functional public spaces? We worked with the City of Stonnington on a strategic plan for Prahran Square: to hero pedestrians and provide a safe, multipurpose environment for the community. Our design facilitates interactions and community engagements instead of prescribing them. The precinct stitches into the surrounding urban fabric with clear pedestrian routes, shade and seating that support everyday activation and inclusive use. As one of the largest, most ambitious open air plaza projects delivered in Australia, this project marks a symbolic transformation for the community. By moving cars below ground and prioritising people-first movement, the square works as a flexible civic platform for markets, events and daily life.

It saw Cato Square, an unremarkable car park breeding antisocial behaviour, reimagined into a diverse public realm for the community. The space ebbs and flows with the mood of each day and the people that occupy it, allowing the community to define the meaning of the space. This aspect of flexibility and accessibility in our design is key in creating a safe public realm –– for a space to be safe it requires diverse people to use it in diverse ways. Ongoing community consultation and programming help the place feel locally owned while remaining welcoming to visitors. By giving space back to the people Prahran Square has already transformed a community. Its true potential however, will be realised over time as the community transfers their identity to make the place their own. Landscape-led edges and legible paths make the experience intuitive for first-time users, strengthening everyday wayfinding.

  • Sector

    Urban Design

  • Key Lyons contacts

    Adrian Stanic

  • Collaborators

    ASPECT Studios

  • Client

    City of Stonnington

  • Location

    Izett Street, Prahran

  • Traditional land

    Located on the traditional lands of the Wurundjeri and Boon Wurrung people

  • Size

    10,000 square metres

  • Project status

    Complete, 2019

Awards

2021 Awards
    • 2021 Australian Institute of Architects Victorian Chapter Awards, Urban Design Commendation
    • 2021 Australian Institute of Architects Victorian Chapter Awards, Public Architecture Commendation
    • 2021 International Federation Landscape Architects Asia-Pac – Landscape Architecture Awards, Built Projects: Cultural and Urban Landscape
    • 2021 Good Design Awards, Best in Class – Architectural Design: Urban Design and Public Spaces
    • 2021 Good Design Awards, Best in Class – Architectural Design: Precinct Design
    • 2021 Australian Urban Design Awards – Built Projects: Local and Neighbourhood Scale Award

Building
the city

Collaborating with
designers and artists

Enriching cultural
experience

Reclaiming community space

Pedestrians are at the forefront of our design for Prahran Square. Increasing open space was a priority for The City of Stonnington as it had the second lowest amount in Victoria. The local council resisted selling or commercialising the space, instead raising $65 million to invest in a public facility that would give space back to the community. Universal access and step-free connections ensure the square is comfortable and safe for people of all ages and abilities.

Our design for Prahran Square meets two critical objectives: creating a safe, flexible space for the public, and providing a solution for car spaces. Our solution to house two floors of parking under the square allows us to meet these objectives. The two levels of parking below Prahran Square dictate some aspects of the design above, with elevated terrain allowing for the large sweeping entry into the carpark. Locating parking below grade frees the ground plane for flexible uses and clear pedestrian desire lines.

Raised up to allow natural light to permeate the car park below, the edges of the square also make for a safer public space. This increased visibility and clear wayfinding are important in prioritising pedestrian safety. Good visibility in both the square and car park allow for passive surveillance which is accompanied by full CCTV surveillance. A rarity in Prahran, the space is completely sheltered from cars, allowing pedestrians to relax and enjoy the space. Lighting, sightlines and active frontages reinforce passive surveillance and intuitive wayfinding after dark.

Blending into a city of bluestone and red brick

We met the brief for Prahran Square with a strategic approach to ensure our design contributed to, and became part of the city. Taking inspiration from Prahran itself and famous public squares around the world, we drew connections to surrounding historic neighbourhood features. Beginning with the functional design of the square, we recognised the four corners as important gateways for pedestrians to pass diagonally through the space. Diagonal routes keep movement efficient between the market, Town Hall and Greville Street while preserving places to pause.

From these four corners we created nine unique spaces, each adding different value to the community. To be able to integrate the large public space with the community we linked aspects to surrounding landmarks and streetscapes. The bluestone of the Town Hall comes from the south, and red brick of the market from the north. To add a conceptual layer to our design, we revived what is now the forgotten concept of navigating streetscapes via landmarks. This landmark-based approach builds a memorable identity and complements signposted wayfinding. Today, smartphones enable wayfinding and replace the importance of iconic landmarks in public places. We imbued the site with distinct features on each side of the square as a homage to this concept.

“The design for Prahran Square is a great model for change – it puts pedestrians first by locating cars underground, returning valuable open space to people. Imagine the open space Melburnians could gain if this model was more prevalent.”

Jill Garner, Victorian government architect.

“Prahran Square has become the new cultural and recreational heart of Prahran with spaces to relax, catch up with friends and take a breather from the hustle and bustle of nearby Chapel and Greville Streets…[it has] been vitally important in becoming a ‘Backyard’ to the densely populated Prahran Precinct.”

Rick Kwasek, Director of Environment and Infrastructure at City of Stonnington

Diverse ideas generate diverse spaces

We made the most of opportunities to collaborate with both the community and artists to create a space that would appeal to a broad range of people. Together with the City of Stonnington, we engaged with the community via social media channels, online forums and a dedicated website. We worked closely with the council and their Stakeholder Groups throughout all stages of the project to keep the community’s voice at the forefront of our design. This co-design process shaped programming, access and amenities so the space supports everyday activation as well as events.

A product of collaboration can be seen in the immersive digital art installation by Ramus, titled The Pipes. Found in all four corners of the square, the installation contains LED poles inspired by Prahran’s history and environment, and showcases visuals and a soundscape that gently welcomes and beckons people into Prahran Square 24-hours a day. Public art at entries doubles as legible landmarks, enriching the visitor experience and improving informal wayfinding.

Encounters worth growing

The real potential of Prahran Square will evolve over time as people interact with the space. The square is a combination of a park, a square and streets, and so its uses by extension are varied. It is designed for encounters ranging from intimate to large scale during all times of the day. The central space is the formal square, that becomes a casual platform for daily use. Seating terraces, lawns and shaded pockets create multipurpose settings—from quiet rest to festivals—supporting a resilient civic precinct all year. Similarly, the interactive multi-jet water feature embedded at the centre of the square is popular with children and creates a focal point where passers by can engage. Carefully engineered to minimise water usage through recycling its own water, the water feature boasts a sustainable element of the design. The design of the square is deliberately a freely accessible and uncommercialized local resource. Edges for cafés and retail remain at the perimeter, keeping the heart of the square genuinely public. It is only on the outskirts of the space that commercial activation comes into play, with shops and cafes clearly distinguished from the boundaries of the square. This balance of active edges and open centre supports safety, visibility and community-led placemaking.

Key Contacts

Related content