Royal Hobart Hospital

Royal Hobart Hospital

Building
the city

Healthier
communities

“The [Royal Hobart Hospital’s] design allowed for a smooth transition with no reduction in services. Now complete, it provides new hospital facilities and enhanced service delivery outcomes.”

Corbett Lyon, Director of Lyons

A pivotal evolution in healthcare for the community, our design for the Royal Hobart Hospital (RHH) is the largest single investment in health infrastructure in Tasmania. With this large investment came an important opportunity to evolve a hospital that had existed on its current site for almost 200 years. Our redevelopment balanced the challenges of allowing the original hospital to remain fully operational while simultaneously building a new hospital with some of the most advanced facilities in Australia. Carefully sequenced staging and decanting strategies enabled a live-site build while protecting essential services.

With construction now complete, not only is the RHH exceeding the needs of a community today, its design will withstand rapid development in the healthcare industry to meet the needs of patients and medical staff well into the future. Designed to compliment the community it serves, the RHH will support the people of Hobart and Tasmania through some of life’s most pivotal moments. Flexible planning, standardised rooms and clear clinical adjacencies support healthcare efficiency and team-based care across disciplines. Because of this, Hobart’s identity is woven into the fabric of the hospital, creating a welcoming space that blends with its surroundings. Far more than a welcoming environment, the RHH instills faith in the community that their local healthcare is world class, providing the best care to the people of Tasmania. Legible entries, clear wayfinding and welcoming public spaces make the hospital intuitive for patients and visitors.

  • Sector

    Hospitals & Healthcare

  • Key Lyons contacts

    Corbett Lyon
    Adrian Stanic

  • Collaborators

    Terroir

  • Client

    Tasmanian Government

  • Location

    48 Liverpool St, Hobart TAS 7000

  • Traditional land

    Located on the traditional lands of the Palawa people

  • Size

    42,000 square metres

  • Project status

    Complete, 2020

“The $689 million RHH Redevelopment has transformed Australia’s second oldest hospital into a state-of-the-art health facility for generations of Tasmanians to come. The design team has worked side-by-side with clinicians, hospital staff and the project team throughout the journey.”

Cheryl Carr, Deputy Project Director of the Royal Hobart Hospital Redevelopment

“This important redevelopment gives staff and patients access to beautiful, state-of-the-art facilities in a human-centred designed building that will instantly transform the delivery of health care services and improve the quality of patient and staff experience.”

Adrian Stanic, Director of Lyons

Transforming healthcare from the ground up

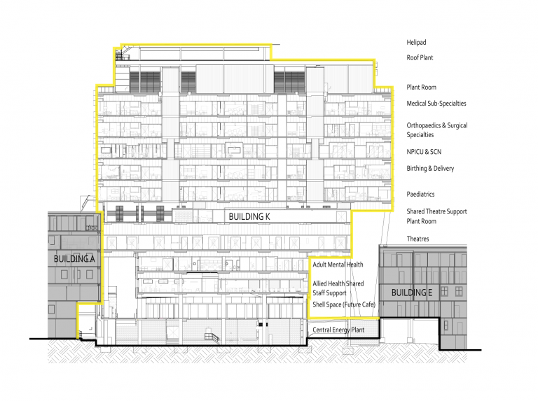
The redevelopment of the Royal Hobart Hospital is Tasmania’s largest ever health infrastructure project. A complex undertaking, this project required strategic staging to maximise site efficiency and allow the continuation of vital health services. The masterplan includes the demolition of the existing building and a complete redevelopment of the campus. This campus-scale approach prioritises patient flow and service routes to streamline movement and improve safety. As Tasmania’s largest hospital and major teaching and research facility, our design delivers an all-new hospital facility, rather than simply refitting existing buildings. Critical to delivering this vision was the logistical planning and management of the project.

We led and managed the entire design process to ensure the RHH departments could still function throughout the redevelopment. Lyons director Corbett Lyon commented on these challenges saying, “The staged masterplan solution allows us to eliminate many of the existing site problems which have resulted from the hospitals’ organic, rather than strategic, growth over many years. The design allows for a smooth transition with no reduction in services, and when complete [it will provide] new hospital facilities and enhanced service delivery outcomes.” Live-site delivery was coordinated with clinicians to align new departments and minimise disruption to care.

Exceptional patient experience

Our innovative masterplan for the Royal Hobart Hospital benefits healthcare workers, patients and visitors both directly and indirectly. The new building elevates Tasmania’s healthcare offering, with facilities including women’s and maternity, neonatal, special care nursery, paediatric and mental health facilities, neurosurgery, and intensive care. Family-centred planning groups related services to shorten journeys from arrival to treatment. It provides general and specialty medical and surgical services, a helipad, and is the state referral centre for cardiothoracic surgery, intensive care and high-risk obstetrics.

Patient services are spread across the 10 floors. The dedicated women’s and children’s precinct, spread over three levels, provides women and children with some of the best facilities in Australia. We designed the birthing suites to feel less like typical hospitals, creating relaxed and private environments for patients. The inclusion of an adolescent unit speaks to our patient centric approach. Spaces give adolescents choice and privacy within a therapeutic environment that respects different stages of care. Adolescents are often neglected in healthcare design, left to be treated in the children’s ward or moved to the adults. Our design specifically acknowledges them in our system with the inclusion of an inpatient school, recreational space, two safe rooms for patients to receive tailored care and access to nature to improve the healing journey.

 

In addition to world class research and health services, salutogenic design principles throughout the RHH are improving the wellbeing of healthcare workers, patients and visitors alike. Bright colours, increased natural light and views to the surrounding beauty of Hobart’s landscape assist with wayfinding and improved wellbeing. Art, access to the rooftop garden and interactive technologies act as positive distractions, reducing anxiety in patients and improving staff and visitor experiences. These measures reflect evidence-based design and benefit staff wellbeing as much as patient comfort. Thoughtful design can be found in subtle moments, such as the multi-coloured feature ceiling lights in the Paediatric Ward Public Lift Lobby, designed to mimic the Aurora Australis (Southern Lights), keeping in the Paediatric Ward theme of ‘Voyage to the Antarctic’.

Built from local environment for locals

Ensuring Tasmania’s identity is inextricably woven into the fabric of the Royal Hobart Hospital was an important part of our brief. Not only do colours reference the surrounding landscape but the materials used throughout (granite, sandstone, blackwood and Tasmanian Oak) are from the local environment. The square and H shapes of the windows and in the facade are inspired by the Rajah Quilt created by female convicts during their voyage from Britain to Tasmania on the Rajah Great Britain convict ship. The Rajah Quilt is a decorative, embroidered textile created as a testimony of gratitude to the British Ladies Society for the Reformation of Female Prisoners for their kindness. Interpreting local stories and materials at key touchpoints builds identity and strengthens the patient experience.

Speaking on the success of RHH’s design reflecting its local environment, Cheryl Carr, Deputy Project Director of the Royal Hobart Hospital Redevelopment said, “The $689 million RHH Redevelopment has transformed Australia’s second oldest hospital into a state-of-the-art health facility for generations of Tasmanians to come. The design team has worked side-by-side with clinicians, hospital staff and the project team throughout the journey. Together we have delivered a beautifully designed facility that complements Hobart’s built and natural environments and a person-centred design that will transform the way health care services are delivered and vastly improve the patient experience.”

Awards

    • 2022 Australian Institute of Architects Tasmania Awards – Commendation for Public Architecture

Key Contacts

Related content