Curtin University,
Midland Campus

Curtin University,
Midland Campus

“Our design included for high end health simulation and learning facility surrounded by a diversity of inclusive study spaces… encased in a natural materiality with linkages to local landscape, and culturally significant design elements integrated for sharing of knowledge and innovative learning.”

James Wilson, Director of Lyons

The Midland Campus building marks a new education precinct for Curtin University. Designed to directly benefit Health Science academics, latter year medical students, Midland Campus forms a key component of metropolitan Midland in Western Australia. Planning prioritises clear wayfinding, visible stairs and terraces to encourage student engagement and everyday activation within the precinct. Our vision for the building was to design a new community hub for medical education, as a microcosm of a campus environment. The design was born from a collaborative process, melding distinct elements of Curtin University and Historic Midland with contemporary design and Indigenous culture. Ground-level paths and public edges link the campus to surrounding streets and landscapes, reinforcing the building’s role as a community hub. Sitting on traditional Whadjuk country, the design integrates Indigenous design elements intended to acknowledge the traditional owners of the land, and imbed this living culture in the foundations of learning. The design enables a flexible, collaborative university experience, housing state-of-the-art learning and multi-disciplinary simulation spaces that will attract Health Science students from across the country.

  • Sector

    Education & Learning

  • Key Lyons contact

    James Wilson

  • Collaborators

    Silver Thomas Hanley

  • Client

    Curtin University

  • Location

    Midland WA 6056

  • Traditional land

    Located on the traditional lands of the Wadjuk Noongar People

  • Size

    3,050 square metres

  • Sustainability

    5 star Green Star Design and As-Built rating

  • Project status

    Complete, 2019

Awards:

2020 Global Awards
    • 2020 Good Design Award Accolade, Architectural Design Commercial and Residential Category
    • 2020 Australian Institute of Architects National Awards, National Award for Educational Architecture
    • 2020 Brick in Architecture Awards, Best in Class in the International Category – Curtin University Midland Campus
2020 Australian Institute of Architects Awards - WA Chapter
    • 2020 Australian Institute of Architects WA Chapter, The Hillson Beasley Award for Educational Architecture
    • 2020 Australian Institute of Architects WA Chapter, The Julius Elischer ward for Interior Architecture

“The Campus gracefully integrates state-of-the-art, technology rich learning and teaching with outstanding architecture that represents a contemporary interpretation of the ‘distinctly Curtin’ architecture combined with the heritage surrounds of the Midland Workshops Precinct.”

Prof. Deborah Terry at the Official Launch of the Midland Campus building (22 November 2019)

“I enjoyed working with Lyons for our Midland campus. It was wonderful to be able to highlight Whadjuk country using Noongar language for animals and plants throughout the building. It is a way for both staff and students to learn and speak language while teaching and studying at the campus.”

Prof. Marion Kickett, Noongar leader from the Balardong language group, Professor at Curtin University

Collaborating with
designers and artists

Student
Experience

Transforming
the Campus

A campus to enhance the community

Designing Curtin University’s Midland campus was an opportunity to shape the onsite experience from the ground up. Breaking ground with the first building for the campus, our goal was to enhance wellbeing, promote sustainability and forge a link to the Wadjuk Noongar People. The building houses teaching and learning spaces for Health Science disciplines and welcomes key users from Curtin Medicine, Nursing and Allied Health programs.  A connected public realm and shaded outdoor rooms support informal study and student engagement.

The site sits on traditional Whadjuk country near the confluence of the Helena and Swan rivers, a culturally rich area for both pre and post colonial histories. Situated in Midland’s historic Rail Workshops Precinct, the new Campus forms a key component of the former Metropolitan Redevelopment Authority’s Midland Master Plan, repositioning the precinct as a medical and education hub. Our design integrates the broader community with the university, giving the public full access around the building and connecting the rail line to the north through to the Helena river to the south. The campus plays an important role in bringing higher education to the Midland area for the first time, benefiting local businesses and the community. 

Designed as a clinical base for students to take advantage of adjacent health services and community agencies, the campus fosters an invaluable experience for students. Exposure to this environment will give students the skills and experience needed to work in complex cultural environments, while meeting the changing needs of future employers.

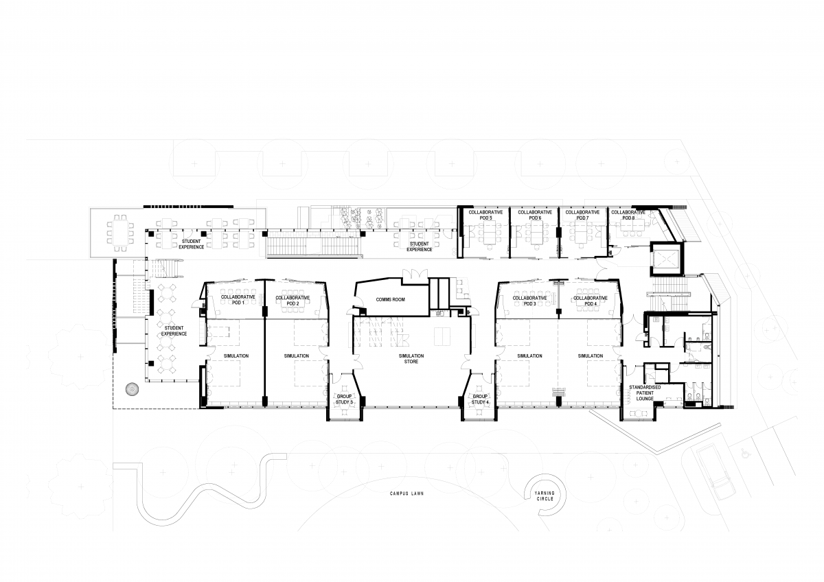
The three story building boasts technology rich learning and teaching facilities to encourage collaboration. Level 1 is made up of four flat floor learning spaces, equipped with audio visual and distributed learning capabilities to enable remote access to teaching and learning. Open booths provide opportunities for informal collaboration while end of trip facilities such as bike storage, change rooms and lockers accommodate a flexible university lifestyle.

 

On Level 2 sits four immersive simulation suites, each with a separate collaborative pod complete with a one way glass wall for observation and assessment. These immersive simulation based environments facilitate interprofessional collaboration. 

Level 3 houses the relaxed student areas, kitchen, staff work areas and meeting rooms. Balconies project towards key vistas within the precinct—Centennial Place, Blacksmith Lane, and Helena River—encouraging student activity to emerge into the public realm, while providing students with external study spaces and much desired access to fresh air and light from all levels. These balconies operate as ‘urban rooms’, extending study outdoors and strengthening visual connection to the precinct.

“The new Campus represents exemplary standards in learning and teaching, and further cements the University’s place as a leader in education and research. It will bring tertiary education to the Midland area for the first time, benefiting businesses and broader communities in the region. The Campus gracefully integrates state-of-the-art, technology rich learning and teaching with outstanding architecture that represents a contemporary interpretation of the ‘distinctly Curtin’ architecture combined with the heritage surrounds of the Midland Workshops Precinct – an important base for Curtin’s medical students and will positively contribute to stimulating engagement, activation and economic growth in the Midland area.”—client quote, taken from AIA submission.

Collaboration breeds thoughtful design

Integrating Indigenous design elements into Midland Campus was a key element of the brief. The project lent itself to collaboration with Curtin University’s Centre of Aboriginal Studies as the site sits on Noongar country. United on our vision to create a building that embodies Indigenous culture, we worked together to create a community space with Indigenous influences throughout. Co-design with the Centre of Aboriginal Studies ensured cultural narratives are present in art, signage and landscape, supporting everyday learning. The purpose of our collaborative working methods was to reconnect the community to Indigenous culture and create an environment that consciously teaches students to learn with empathy.

The Midland Campus’ design, artwork, landscape and signage reflect a strong connection to the Whadjuk Noongar people. The concrete entry sign in the public forecourt establishes the importance of Indigenous culture from the first encounter, reading ‘Kya Wandju Wandju’ (Welcome). Inside the entry foyer, a ‘Welcome to Country’ presented in English and Noongar dialect is etched into the timber wall panels. Bilingual wayfinding and learning graphics embed language across floors and disciplines.

Other cultural details include natural local materials, bilingual signage in Nyungar and English throughout the building including wayfinding and labelled anatomy imagery, significant Indigenous public art, medicinal planting, a dedicated yarning circle, a medicinal garden and totems and stories from local Elders in Nyungar and English about native fauna. These measures foster cultural safety for students, staff and visitors.

Public artwork, commissioned from Milne and Stonehouse and Indigenous artist Justin Martin, tells the story of aboriginal innovation through the gathering of honey. It is visually represented by a large scale (12m x 6m) painting ceramically printed on the northern glass façade, and the hanging of a golden beehive, titled Ngook, under the entry soffit as a symbol of medical ingenuity of the first Nations people.

Enabling empathy

Our design for Midland Campus shapes a specific experience for researchers, teachers, students and the community of Curtin University. It links them to an existing student lifestyle and shapes a new one. To give a sense of continuity and foster existing student culture, it was important the building reflected the distinctive brutalist architecture of Curtin University’s Bentley Campus and the historic Midland Rail Workshops. Carved brick screens and robust concrete structure reference Bentley’s ‘distinctly Curtin’ language while improving shading and identity. The building comprises complex structural forms like cantilevers and intricate red-flashed brickwork such as the brick brise-soleil veil of the facade. These accents act as signifiers to the Bentley Campus, reminding students they are  part of a community. 

As the first building of the new campus for Curtin University, our design needed to establish an educational building and account for all relevant amenities. The Campus has a people-centred design that enhances student experience. High levels of daylight and clear lines of sight to quality external views make internal spaces comfortable for study. To achieve this, the building form is conceptually a solid object, carved away to reveal the student workings within. This carved-out approach also announces entry and activity to the precinct, reinforcing welcome and visibility.

“We knew this unique facility needed to contain features that provided amenity for both public, campus use and educational facilities specific to medical training and research. As the first of what we know will be many buildings on campus grounds our considered design includes diverse social inclusive study spaces, access to natural, local materiality, culturally significant spaces for recreation and education (such as the yarning circle) and direct connection to the landscape like Helena river.”—James Wilson, Director at Lyons

Design details layer to acknowledge the connection to Indigenous culture, enhance the beautiful space and anchor it to the surroundings in a site specific environment. This enables more empathy for students and their future patients. The interior colour scheme is inspired by the area’s native plants, while abstracted local fauna and animals make up interior ceiling patterns. These design features, accompanied by dual language signage, act as a learning tool telling Indigenous stories on each floor of the building. As a medical training facility, the body parts are graphically displayed on the training walls in dual English / Whadjuk dialect to encourage language learning for the students and to increase connection with and cultural understanding of Indigenous patients.

Key Contacts

Related content